406 El Paseo

Lake Forest, CA 92610

$ 875,000

Price

2

Beds

2

Baths

1,423 Sq. Ft.

$615 / Sq. Ft.

0 Days On Market

Favorite

Share

El Paseo Building

Listed By Valerie Neeley (DRE# 01988451) at First Team Real Estate and Allen Neeley (DRE# 01954586) at First Team Real Estate (562-599-9216).

Have You Been Pre-Qualified? Start Now

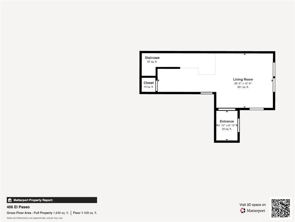
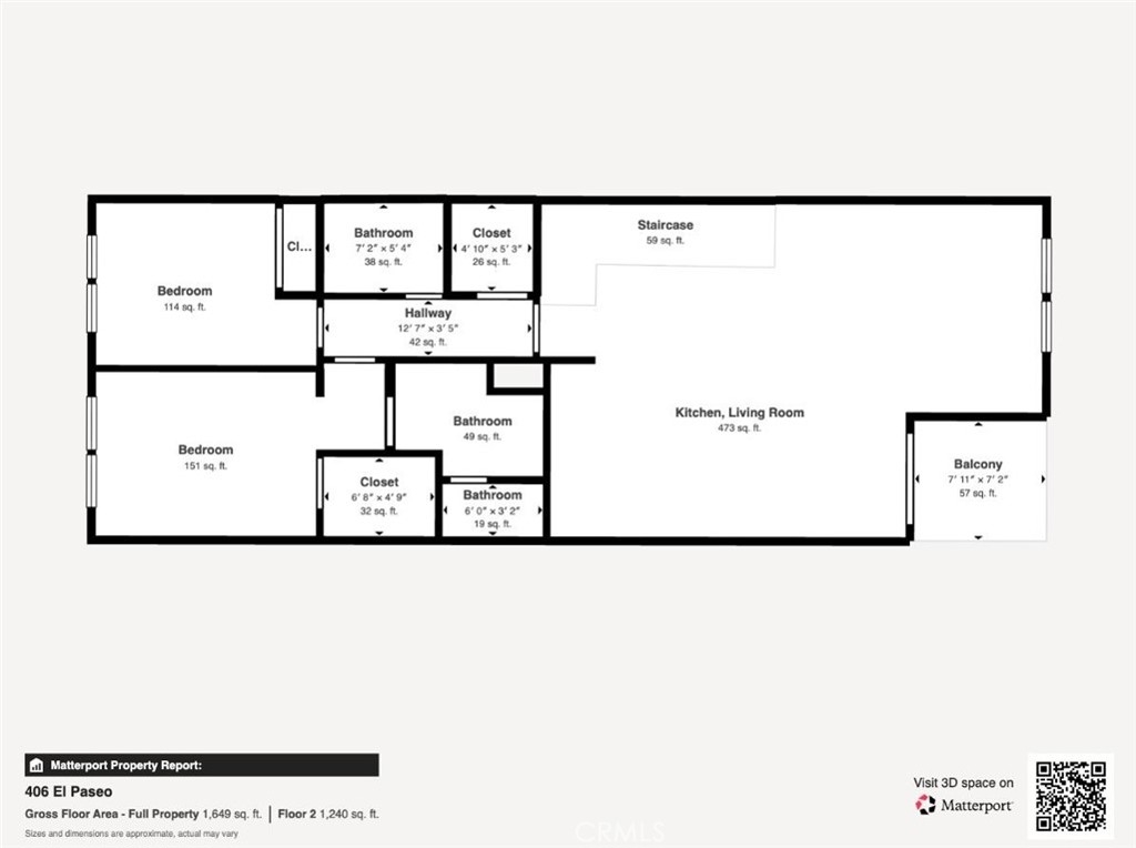
Beautifully updated 2-bedroom townhome WITH office/flex space and 2 full bathrooms located in the highly desirable gated community of El Paseo. Offering a rare layout with no one above or below, this two-story residence combines privacy, functionality, and modern upgrades in one of Foothill Ranch’s most sought-after neighborhoods with lower HOAs and resort style community amenities. As you enter the home, you’re greeted by a spacious first-floor flex space—perfectly suited as a home office, gym, media room, or guest retreat, with the option to enclose for a third bedroom. This level also features direct access to the attached two-car garage, complete with EV hookup (charger not included). Upstairs, the main living area is filled with natural light and designed for effortless living and entertaining. The open-concept layout seamlessly connects the kitchen, dining, and living spaces, flowing out to a private covered balcony—ideal for morning coffee or evening relaxation. The kitchen is both stylish and functional, featuring granite countertops, a large center island with bar seating, white cabinetry, stainless steel appliances, a newer dishwasher, and updated black hardware and fixtures for a modern touch. Additional counter top space with matching counters and cabinets located adjacent to kitchen island with a wine fridge. Both bathrooms have been refreshed with brand new modern tile, enhancing the home’s clean, contemporary feel. The primary suite offers a peaceful retreat with high ceilings, a walk-in closet, and a well-appointed en suite bath with dual sinks and a walk-in shower. A generously sized secondary bedroom and full hallway bath provide comfort and convenience for family or guests. Additional highlights include luxury vinyl flooring, plantation shutters, recessed lighting, ceiling fans, and a convenient 2-in-1 washer/dryer. This home also features a 1-year-old Halo 5 whole-home water filtration system with a transferable 10-year warranty—providing added value and peace of mind. Residents of El Paseo enjoy access to resort-style amenities including a pool, clubhouse, and playground, all with low HOA and no Mello Roos. Ideally located near parks, hiking and biking trails, shopping, dining, and the 241 Toll Road, this home offers the perfect blend of lifestyle and location. A home that truly adapts to your lifestyle—modern, flexible, and move-in ready.

Show More
Property Type Townhouse
Lot Size 30,563 sq. ft.
Year Built 2015
MLS # OC26059899
Listing Type Active
Heating Central
Cooling Central Air
Pool Association
Laundry Inside, Upper Level, Washer Included, Dryer Included
Parking Tandem Garage, Garage - Single Door, Garage Faces Rear
Gated Community Yes

Last Updated: 0 days ago

Payment Calculator

40% Complete (success)
80% Complete (danger)
20% Complete
80% Complete (danger)
60% Complete (warning)
Principal and Interest
Property Taxes
Homeowners' Insurance
HOA Dues
Mortgage Insurance
Image Calculator Icon Customize Calculations | Compare Mortgage Rates

Property Details for: 406 El Paseo

Interior Features

Bathroom Information
  • 2 full baths
Laundry Information
  • Inside
  • Upper Level
  • Washer Included
  • Dryer Included
Interior Features
  • Balcony
  • High Ceilings
  • Living Room Balcony
  • Ceiling Fan(s)
  • Recessed Lighting
  • Open Floorplan
  • Storage
  • Granite Counters
Heating & Cooling
  • Central Air
  • Central

Parking / Garage, Multi-Unit Information, Location Details

Interior Information
  • Balcony
  • High Ceilings
  • Living Room Balcony
  • Ceiling Fan(s)
  • Recessed Lighting
  • Open Floorplan
  • Storage
  • Granite Counters
Parking Information
  • Tandem Garage
  • Garage - Single Door
  • Garage Faces Rear
Community Features
  • Units in Complex (Total) 147

Exterior Features

Pool & Spa Information
  • Association
  • Association
Building Information
  • Total Floors: 2

Property / Lot Details

Lot Information
  • Lot Size (Sq. Ft) 30,563
Property Information
  • Attached
  • Tax Parcel Number: 93310618

Recently Sold Homes Near 406 El Paseo

Nearby Businesses

  • Grocery Stores
  • Drug Stores
  • Coffee Shops
  • Restaurants
  • Health & Medical
  • Fitness & Activity
  • Arts & Entertainment
  • Nightlife & Bars
    Browse all businesses in Lake Forest, CA, 92610

    Tour This Condo

    FRIDAY

    20

    MAR

    SATURDAY

    21

    MAR

    SUNDAY

    22

    MAR

    MONDAY

    23

    MAR

    TUESDAY

    24

    MAR

    WEDNESDAY

    25

    MAR

    THURSDAY

    26

    MAR

    Schedule A Tour
    Ryan Case, Licensed Realtor & Team Lead

    Ryan Case

    Licensed Realtor & Team Lead

    949-570-4445 Contact Ryan Case

    Similar Condos For Sale

    View All 96 Condos