22212 Summit Hill Drive #18

Lake Forest, CA 92630

$ 889,000

Price

3

Beds

2.5

Baths

1,620 Sq. Ft.

$549 / Sq. Ft.

167 Days On Market

Favorite

Share

Grandview Crest Building

Listed By John Meraz (DRE# 02015103) at Coastal Pacific Realty (949-836-8055).

Have You Been Pre-Qualified? Start Now

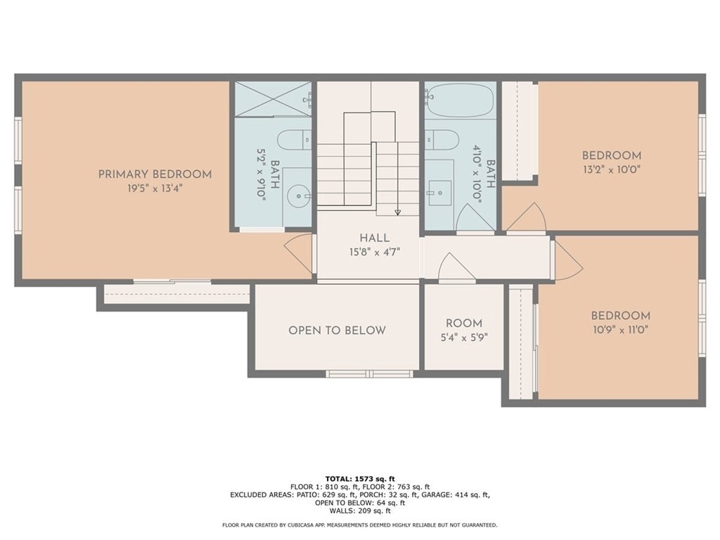
Introducing 22212 Summit Hill #18. This 3-bedroom, 2.5-bath townhome in Grandview Crest offers 1,620 square feet of updated living space with thoughtful upgrades throughout. Step inside to a bright, open entry with vaulted ceilings, recessed lighting, and plenty of natural light. The main living area features a gas and wood-burning fireplace that adds warmth and character. The home has been fully remodeled, with a modern kitchen featuring upgraded finishes and hardware, beautifully redone bathrooms, and new wood flooring. Major improvements include new windows, a new AC system, plus a new roof and fresh exterior paint—all completed within the past three years. Upstairs, the bedrooms are spacious and inviting, with two upgraded bathrooms that include wall panels and a built-in Bluetooth shower speaker. Outside, the large back patio provides a comfortable place to relax and take in the view. Grandview Crest is known for its welcoming community feel, especially around the holidays, and offers amenities such as two pools, a clubhouse, and basketball and tennis courts. This is truly one of the nicest units in the complex—don’t miss your chance to see it.

Show More
Property Type Condominium
Lot Size 234,236 sq. ft.
Year Built 1986
MLS # PW25192803
Listing Type Closed
Heating Central
Cooling Central Air
Pool Community
Laundry Inside
Parking Garage
Gated Community No

Last Updated: 153 days ago

Payment Calculator

40% Complete (success)
80% Complete (danger)
20% Complete
80% Complete (danger)
60% Complete (warning)
Principal and Interest
Property Taxes
Homeowners' Insurance
HOA Dues
Mortgage Insurance
Image Calculator Icon Customize Calculations | Compare Mortgage Rates

Property Details for: 22212 Summit Hill Drive #18

Interior Features

Bathroom Information
  • 2 full baths, 1 half bath
Laundry Information
  • Inside
Fireplace Information
  • Gas
  • Wood Burning
Interior Features
  • Cathedral Ceiling(s)
Heating & Cooling
  • Central Air
  • Central

Parking / Garage, Multi-Unit Information, Location Details

Interior Information
  • Cathedral Ceiling(s)
Parking Information
  • Garage
Community Features
  • Units in Complex (Total) 341

Exterior Features

Pool & Spa Information
  • Community
Building Information
  • Total Floors: 2

Property / Lot Details

Property Features
  • Hills
  • Trees/Woods
Lot Information
  • Lot Size (Sq. Ft) 234,236
Property Information
  • Attached
  • Tax Parcel Number: 93805287

Recently Sold Homes Near 22212 Summit Hill Drive #18

Nearby Businesses

  • Grocery Stores
  • Drug Stores
  • Coffee Shops
  • Restaurants
  • Health & Medical
  • Fitness & Activity
  • Arts & Entertainment
  • Nightlife & Bars
    Browse all businesses in Lake Forest, CA, 92630

    Tour This Condo

    TUESDAY

    17

    MAR

    WEDNESDAY

    18

    MAR

    THURSDAY

    19

    MAR

    FRIDAY

    20

    MAR

    SATURDAY

    21

    MAR

    SUNDAY

    22

    MAR

    MONDAY

    23

    MAR

    Schedule A Tour
    Ryan Case, Licensed Realtor & Team Lead

    Ryan Case

    Licensed Realtor & Team Lead

    949-570-4445 Contact Ryan Case

    Similar Condos For Sale

    For Sale

    $ 840,000

    3 beds, 2.5 baths, 1,556 sq.ft.

    22312 Summit Hill Drive #41 ...
    View All 89 Condos